

Partager sur
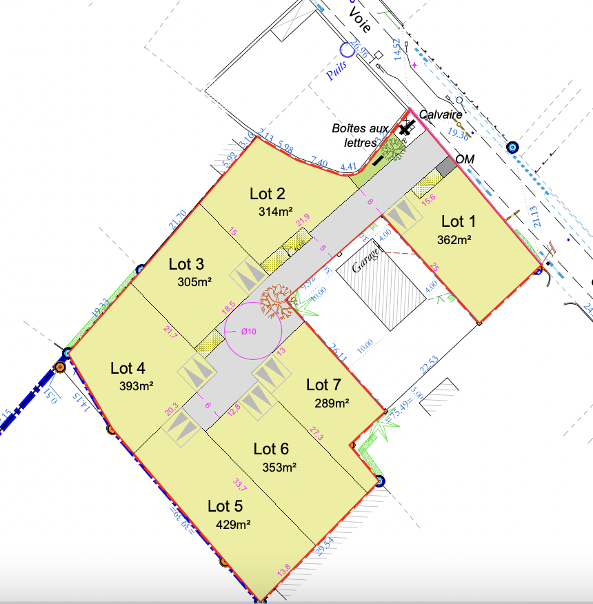
Agence immobilière Le Pallet. ABÉLARD IMMOBILIER. DERNIÈRES OPPORTUNITÉS sur ce secteur recherché, à vendre terrain constructible à Aigrefeuille-sur-Maine (44140) pour une surface d'environ 314 m², viabilisé (électricité, eau, télécom et tout à l'égout) bornage en cours et libre de constructeurs. Situé au calme, dans un environnement verdoyant et boisé, ce terrain offre un cadre de vie paisible tout en restant à proximité du centre et de ses commodités (voie cyclable sécurisée). Cette parcelle offre de belles possibilités pour votre futur projet de maison. La commune de Aigrefeuille-sur-Maine présente de nombreux atouts, notamment par ses différents services, espaces verts, médecins, complexes sportifs, écoles, piscine, zone commerciale, et les petits commerces de proximité, offrent un confort de vie idéal. Par ailleurs, les grands axes permettent de se rendre rapidement dans le centre-ville de Nantes en 30 minutes et à seulement 1 heure de la côte Vendéenne. Prix de vente : 93 400 € Frais d’Agence Inclus (FAI) soit 88 900 € Net Vendeur et 4 500 € TTC de Frais d’agence à la charge de l'acquéreur (5,06 % du prix Net Vendeur). LOT n°2/7. Reste trois parcelles disponibles sur 7.  Â
Code postal 44140
surface terrain 314 m²
Vue campagne
Terrain constructible OUI
Terrain Viabilisé OUI
Prix de vente honoraires TTC inclus 93 400 €
Prix de vente honoraires TTC exclus 88 900 €
Honoraires TTC à la charge acquéreur 5,06 %
* : Les informations recueillies sur ce formulaire sont enregistrées dans un fichier informatisé par La Boite Immo agissant comme Sous-traitant du traitement pour la gestion de la clientèle/prospects de l'Agence / du Réseau qui reste Responsable du Traitement de vos Données personnelles.
La base légale du traitement repose sur l’intérêt légitime de l'Agence / du Réseau.
Elles sont conservées jusqu'à demande de suppression et sont destinées à  l'Agence / au Réseau.
Conformément à la loi « informatique et libertés », vous pouvez exercer votre droit d'accès aux données vous concernant et les faire rectifier en contactant l'Agence / le Réseau.
Si vous estimez, après avoir contacté l'Agence / le Réseau, que vos droits « Informatique et Libertés » ne sont pas respectés, vous pouvez adresser une réclamation à la CNIL.
Nous vous informons de l’existence de la liste d'opposition au démarchage téléphonique « Bloctel », sur laquelle vous pouvez vous inscrire ici : https://www.bloctel.gouv.frÂ
Dans le cadre de la protection des Données personnelles, nous vous invitons à ne pas inscrire de Données sensibles dans le champ de saisie libre
Ce site est protégé par reCAPTCHA, les Politiques de Confidentialité et les Conditions d'Utilisation de Google s'appliquent.